0
Skip to Content
Residential Work
Commercial Work
Services
Smart Home Systems
Temporary Power Poles
Solar
About Us
Contact Us
Open Menu
Close Menu
Residential Work
Commercial Work
Services
Smart Home Systems
Temporary Power Poles
Solar
About Us
Contact Us
Open Menu
Close Menu
Residential Work
Commercial Work
Services
Smart Home Systems
Temporary Power Poles
Solar
About Us
Contact Us
View fullsize
View fullsize
View fullsize
View fullsize
View fullsize
Previous
Previous
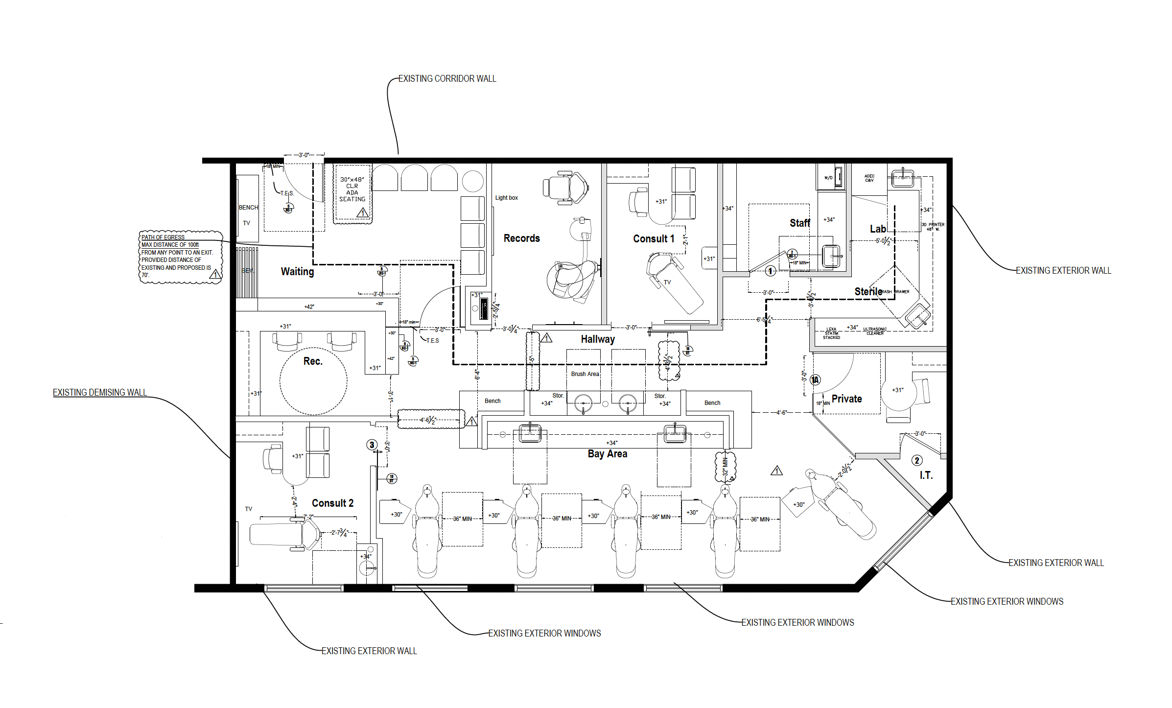
So Cal Sleep Dentistry
Next
Next
Image LA Dental